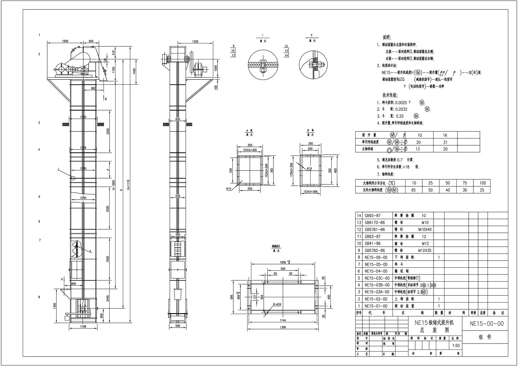
提升机在日产生产中用途广泛,根据提升产量分为带式提升机、环链提升机、板链提升机、不锈钢提升机,主要用于粉体颗粒输送提升,采用流入方式进料,倾斜料斗接料,减少物料与壳体的挤压摩擦,提高了物料的完整性。该设备输送高度至60米,产量0-500吨每小时,主要组成部件为电机、减速机、输送链、壳体。
根据物料输送量选择提升机:

提升机的主要组成分别为:机首部件、中部部件、下部部件、链条以及料斗部件。机头是由由上部机壳,主动轴部件,减速机、连轴器、电机等组装成一体。中段机壳是根据需要提升的高度、选择不同数量的中部机壳迭加起来既能满足需要。
下部部件是由底部机壳,从动轴部件及张紧装置结成一体。而下部部件的机壳侧面有门可以观察,可以对其内部进行检查如清扫。链条材质为圆钢焊接环链。料斗用螺母定在链条的接头上。不同高度的斗提机现套相应数量的链条、接头、及料斗。


新乡市91香蕉视频APP机械设备有限公司
联系人:尚经理
手机:15736969926
邮箱:3043144287@qq.com
地址:河南省新乡西环工业园区